Lokal użytkowy 55 m2 z pełnym wyposażeniem | Zwierzyniec
Szczegóły oferty
( 127 PLN/m2) Powierzchnia:
55 m2 Powierzchnia użytkowa:
55 m2 Wejście: z klatki schodowej
Opis oferty
Do wynajęcia w pełni wyposażony lokal użytkowy o powierzchni 55 m2, idealny pod działalność kosmetyczną. Lokal znajduje się na 2. piętrze nowoczesnego budynku z 2018 roku, z windą i reprezentacyjną klatką schodową. Wejście prowadzi bezpośrednio z klatki schodowej.
Lokalizacja:
Nieruchomość położona jest w prestiżowej części dzielnicy Zwierzyniec – w rejonie Woli Justowskiej. To spokojna, zielona okolica, a jednocześnie bardzo dobrze skomunikowana z centrum Krakowa. W pobliżu znajdują się przystanki autobusowe, liczne punkty usługowe oraz tereny rekreacyjne. Lokalizacja zapewnia komfort zarówno klientom, jak i pracownikom.
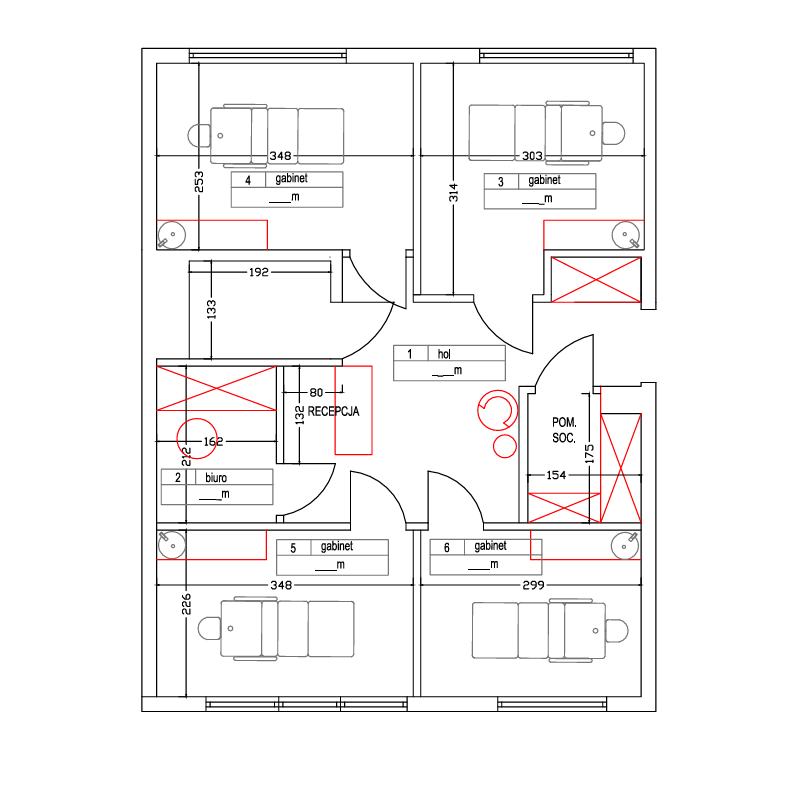
Układ pomieszczeń:
- 4 gabinety
- recepcja
- pomieszczenie biurowe
- pomieszczenie magazynowe (możliwość przekształcenia na kuchnię)
- pomieszczenie sanitarne
Lokal w bardzo dobrym stanie technicznym, gotowy do wejścia – bez potrzeby ponoszenia kosztów za sprzęt czy wyposażenie. Właściciel lokalu może na własny koszt wykonać aneks kuchenny, jeśli najemca będzie mieć taką potrzebę.
Atuty lokalu:
- pełne wyposażenie pod działalność kosmetyczną
- klimatyzacja
- recepcja w lokalu
- alarm, Internet
- ogrzewanie gazowe (piec dwufunkcyjny)
- nowoczesny budynek z 2018 roku
- parking dla klientów za budynkiem
- bliskość komunikacji publicznej
Cena i warunki najmu:
- czynsz: 7 000 zł netto/mc
- cena za m2: 127 zł netto
- opłaty administracyjne: 8 zł/m2 netto
- media: według zużycia
- kaucja: dwumiesięczny czynsz netto
Lokal dostępny od zaraz – zostanie przygotowany i starannie posprzątany dla nowego najemcy.
Serdecznie polecam i zachęcam do oglądania.
Kontakt do agenta:
Damian Jach
535 015 444
email: damian.jach@neodom.pl
NEODOM nieruchomości
Lokalizacja
Zamieszczone na naszych stronach oferty nie stanowią oferty w rozumieniu Kodeksu Cywilnego, a dane w nich zawarte mają jedynie charakter informacyjny i mogą ulec zmianie. Każde biuro nieruchomości działające pod marką neodom® jest niezależnym podmiotem gospodarczym.
Szczegóły oferty
( 127 PLN/m2) Powierzchnia:
55 m2 Powierzchnia użytkowa:
55 m2 Wejście: z klatki schodowej
Detale oferty
| Przeznaczenie | usługowy |
| Stan lokalu | bardzo dobry |
| Typ lokalu | jednopoziomowe |
| Piętro | Piętro II |
| Powierzchnia użytkowa | 55 m2 |
| Wejście | z klatki schodowej |
| Ilość wejść | 1 |
| Klimatyzacja | Tak |
| Rodzaj budynku | apartamentowiec |
| Rok budowy | 2018 |
| Winda | Tak |
| Ilość wind | 1 |