Przestronny lokal biurowy z 2 miejscami postojowymi - Stare Podgórze
Szczegóły oferty
(59 PLN/m2) Powierzchnia:
110 m2 Powierzchnia użytkowa:
110 m2 Wejście: w oficynie
Opis oferty
Przestronny lokal biurowy znajdujący się na pierwszym piętrze jednopiętrowego budynku biurowego, położonego w okolicy ulicy Kalwaryjskiej w dzielnicy Stare Podgórze.
Budynek położony w okolicy jednego z głównych ciągów komunikacyjnych zapewniających sprawną komunikację z dowolną częścią miasta.
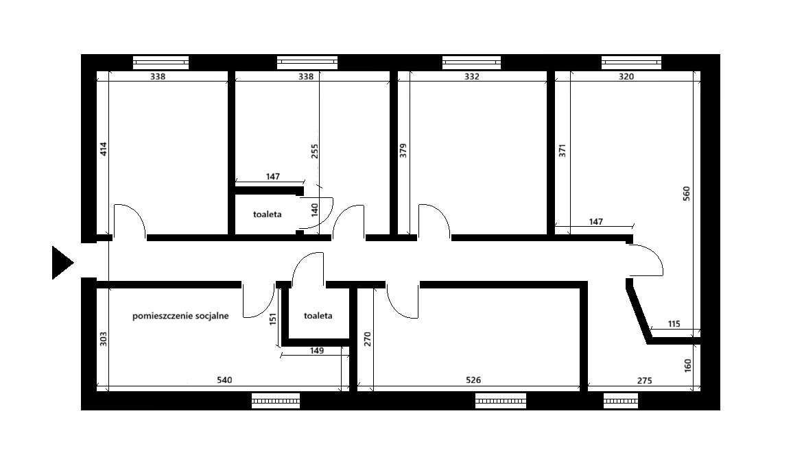
Wysokość lokalu 3,06 metra. W 4 pomieszczeniach podłączenia wodno-kanalizacyjne.
Klimatyzowany lokal o powierzchni 110m2, obecna aranżacja:
- 4 x pomieszczenie biurowe,
- pomieszczenie socjalne,
- 2 x toaleta,
- korytarz.
2 zewnętrzne miejsca postojowe na terenie obiektu w cenie najmu.
Cena: 6.500 PLN netto/m-c + media (prąd, woda, śmieci, centralne ogrzewanie gazowe).
Biuro nieruchomości pobiera prowizję.
Lokalizacja
Zamieszczone na naszych stronach oferty nie stanowią oferty w rozumieniu Kodeksu Cywilnego, a dane w nich zawarte mają jedynie charakter informacyjny i mogą ulec zmianie. Każde biuro nieruchomości działające pod marką neodom® jest niezależnym podmiotem gospodarczym.
Szczegóły oferty
(59 PLN/m2) Powierzchnia:
110 m2 Powierzchnia użytkowa:
110 m2 Wejście: w oficynie
Detale oferty
| Przeznaczenie | biurowy |
| Stan lokalu | bardzo dobry |
| Typ lokalu | jednopoziomowe |
| Piętro | Piętro I |
| Powierzchnia użytkowa | 110 m2 |
| Okna | nowe PCV |
| Wejście | w oficynie |
| Ilość wejść | 1 |
| Klimatyzacja | Tak |
| Ilość pięter | 1 |